올해 하비페어 전시장 크기 현실 체감
게시판 > 수다 떨기
2026-02-26 20:08:20,
읽음: 211
홈지기

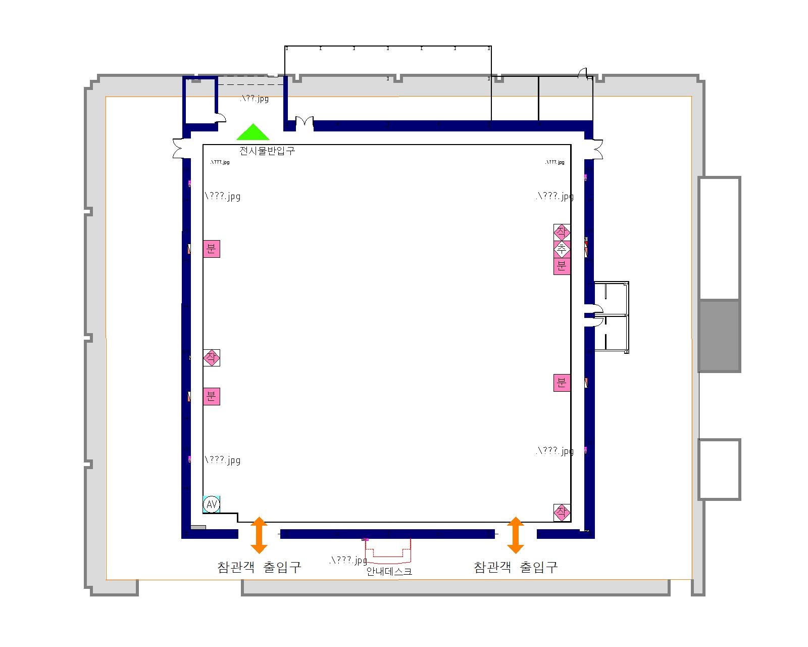
작년 행사장이었던 2전시장을 올해 전시장인 1 전시장에 넣어 보았습니다.
안에 들어간 것이 2전시장, 바깥쪽이 올해 전시장입니다.
같은 그룹의 다른 콘텐츠
날짜
댓글
읽음